Oferta
Zadaniem architekta wnętrz jest towarzyszenie w ekscytującym procesie urządzania waszej wymarzonej przestrzeni do życia. Dzięki naszemu doświadczeniu, znajomości aktualnych trendów oraz nowoczesnym technologiom, możemy stworzyć projekt, który w pełni sprosta waszym potrzebom i oczekiwaniom. Kompleksowy projekt oraz szczegółowa dokumentacja techniczna umożliwią wam zaplanowanie i sprawne przeprowadzenie całej inwestycji.

INWENTARYZACJA
Przed rozpoczęciem remontu w Twoim domu przeprowadzimy dokładne i skrupulatne pomiary całej przestrzeni. Zaznaczymy wszystkie instalacje elektryczne i hydrauliczne oraz uwzględnimy miejsca przeznaczone na oświetlenie. Nasza indywidualna usługa pomiarowa pozwoli wykonawcy na precyzyjne przygotowanie kosztorysu. Zawsze dbamy o to, aby nasze projekty wnętrz były wykonane z najwyższą starannością.

UKŁAD FUNKCJONALNY 2D
To początkowy etap projektowania wnętrz, w którym przygotowujemy kilka wariantów układu przestrzeni, aby znaleźć najbardziej optymalny dla przyszłych mieszkańców. Koncepcja obejmuje podział na różne strefy funkcjonalne. Tworzymy rzut funkcjonalny, który przedstawia rozmieszczenie wszystkich elementów wyposażenia w mieszkaniu lub domu. Układ 2D funkcjonalny stanowi bazę dla dalszej, szczegółowej dokumentacji projektu wykonawczego.

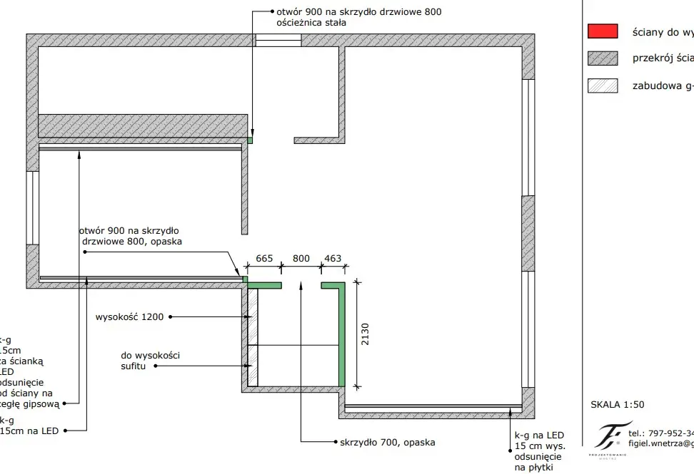
ZMIANY ŚCIAN I WYBURZEŃ
Aby dostosować aranżację wnętrz do Twoich unikalnych potrzeb, czasami niezbędne jest wprowadzenie zmian w układzie ścian mieszkania lub domu. Starannie opracowany projekt zapewni, że wykonawca i jego zespół sprawnie przeprowadzą niezbędne modyfikacje lub prace wyburzeniowe, bez żadnych trudności.

PROJEKT OŚWIETLENIA I INSTALACJI ELEKTRYCZNEJ
Projektowanie oświetlenia to kluczowy etap w aranżacji wnętrz. Jeśli istniejące instalacje elektryczne wymagają zmian, dostosowujemy je do wcześniej opracowanego układu funkcjonalnego.

PRZEKROJE ŚCIAN
W ramach naszego projektu aranżacji wnętrz przygotowujemy szczegółowe przekroje ścian dla całego Twojego mieszkania. Pozwoli to wykonawcy na dokładną realizację projektu oraz montaż wszystkich elementów zgodnie z naszymi zaleceniami.

WIZUALIZACJE 3D
Nasze fotorealistyczne wizualizacje 3D to krok, który pozwala każdemu klientowi zobaczyć ostateczny efekt projektu. Przygotujemy dla Ciebie szczegółową wizualizację, uwzględniającą wybrane materiały oraz wcześniej omówione rozwiązania, dzięki czemu będziesz mógł spojrzeć na swoje mieszkanie z zupełnie nowej perspektywy. Twój wymarzony styl stanie się namacalną rzeczywistością.

LISTA MATERIAŁÓW I WYPOSAŻENIA
Opracowana dla Ciebie szczegółowa lista wszystkich materiałów i elementów zawiera wszystkie akcesoria uwzględnione w projekcie, posegregowane według pomieszczeń oraz kategorii. Dzięki tej liście zakupy staną się znacznie prostsze i wygodniejsze. Dodatkowo, dostarczymy Ci adresy sklepów z wybranymi produktami oraz dokładne ilości potrzebnych materiałów. Zamieszczone na liście zdjęcia ułatwią przeszukiwanie stron internetowych lub składanie zamówień w sklepach stacjonarnych.

PROJEKTY DLA STOLARZA
Nasz projekt zawiera szczegółowe rysunki wraz z opracowaniami, które przekażesz pracowni stolarskiej.

NADZÓR AUTORSKI NAD REALIZACJĄ PROJEKTU
Nadzór autorski nad realizacją projektu przez wykonawcę to moment, w którym przejmiemy na siebie trudniejsze rozmowy. Podczas wizyt na miejscu remontu będziemy monitorować, czy ekipa przestrzega naszych wytycznych. Skontrolujemy jakość wykonanych prac i upewnimy się, że wszystko jest zgodne z dokumentacją techniczną. Po każdej wizycie w mieszkaniu lub domu otrzymasz od nas indywidualny raport, podsumowujący postęp prac.
